0_PROJECT

Laboratoř umění

  • 2014 FA ČVUT
  • PRAHA BŘEVNOV
  • Další projekty

Téma umělecká laboratoř jako místo vývoje nových postupů a přístupů k umění vyžaduje určité zázemí a to jak finanční tak i prostorové. Vzhledem ke svému umístění i konkurenci v podobě malých center umění a drobných galerií v centru, břevnovská laboratoř umění nabízí něco navíc.
Je místem prezentace různých druhů umění a zároveň místem, nabízejícím návštěvníkům si tyto jednotlivé obory vyzkoušet na vlastní kůži. Program laboratoře je založen na dialogu

TEORIE / PREZENTACE / OBSERVACE
versus
PRAXE / DÍLNA / INTERAKCE

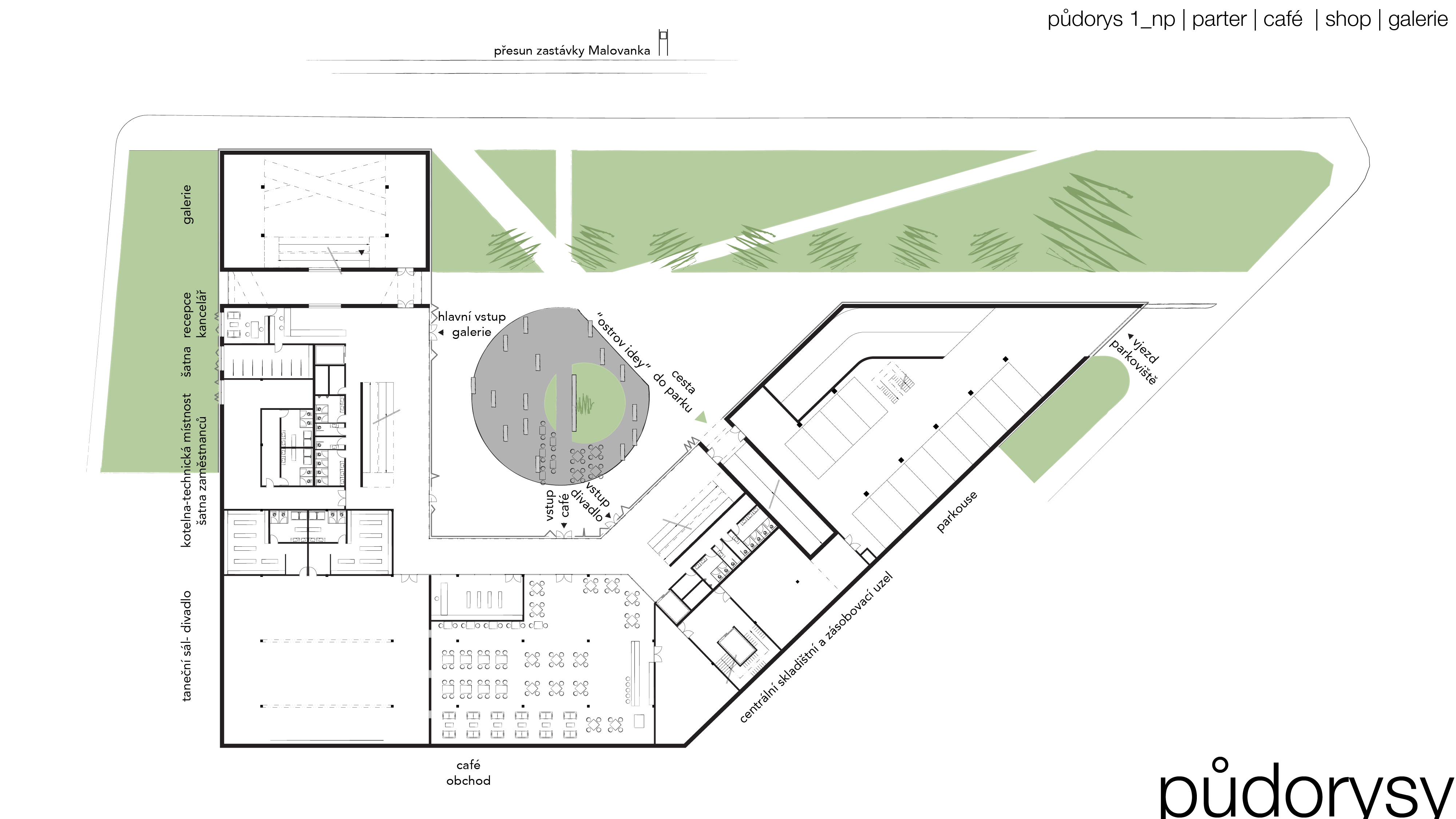
kdy pod záštitou Hl.m.Prahy, vybraní umělci pracují na nových tématech a postupech v umění, jejichž výstupy následně prezentují v gale- rii, divadle či koncertním sále. Návstěvníci laboratoře tyto výstupy sledují a mají možnost mimo jiné navštívit laboratoř jako takovou skrz proskledné dílny/zkušebny a jejich práci sledovat. V dalším kroku pak laboratoř nabízí veřejnosti si v podobě workshopů a kurzů dané umění vyzkoušet. Kapacity objektu tak splňují potřeby laboratoře i školy umění.

PREZENTACE -> OBSERVACE -> INTERAKCE -> PRAXE

Laboratoř je zároveň i místem setkávání a dialogu, čemuž je přizpůsoben prostor v podobě kavárny a piazzety před samotným objektem, nazvané “ostrov ideje”, jež má svým povrchem s mírně kontroverzními kresbami od rumunského umělce Dana Perjovschiho, vzbudit diskuzi, inspiraci či podněty pro další tvorbu.

SETKÁVÁNÍ & DISKUZE & INSPIRACE

prezentace-03

Objekt svým tvarem a objemem reaguje na stávající zástavbu Břevnova, kdy je definován jako bod vyústění kompaktní zástavby ze západ- ní strany a hmotová opozice k hotelu Pyramida. Zároveň je navržen s ohledem na přístup a využití parku jižně od objektu, kde průchodem mezi laboratoří a divadlem nabízí novou cestu do parku přímo z ulice Bělohorská.
Samotná hmota je rozdělena koncepčně na tři hmoty- galerii, laboratoř a divadlo. Spojené jsou můstky, jakýmsi místem tranformace a možnosti “jiných pohledů”. Prvkem zkompaktňující celek laboratoře je předsazená fasáda z tahokovu s polohovatelnými deskami, na straně k ulici hierarchizující objekt dle vstupů, na jižní pak regulujícími prostup světla do ateliérů/dílen.
Fasáda pak promlouvá k návštěníkům i kolemdoucím už z dálky, kdy je svojí otevřeností / zavřeností definuje zda uvnitř momentálně probíhá provoz.